UN BATIMENT INDISPENSABLE À L’EXPLOITATION
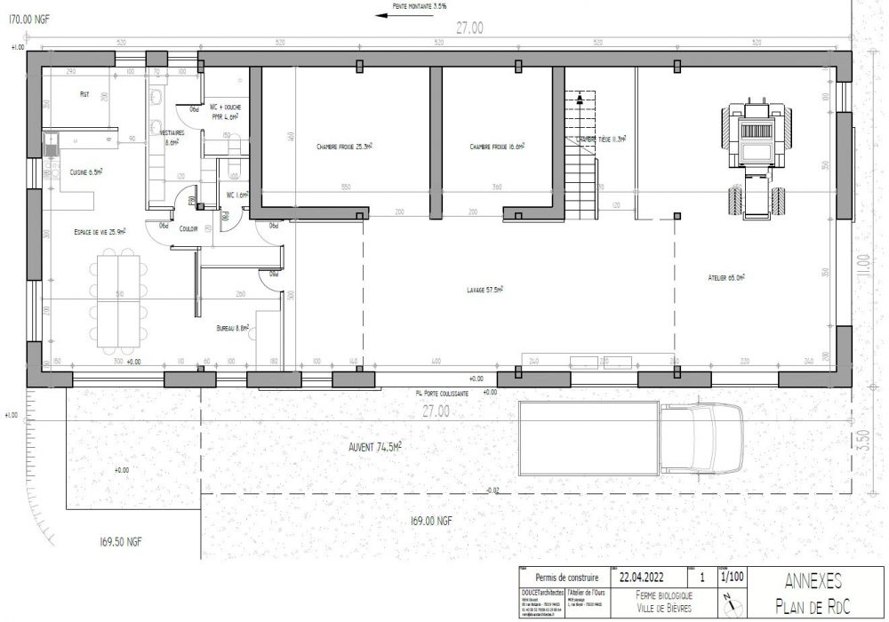
D’une emprise de 300m2, le bâtiment abritera des espaces de lavage, de stockage des productions, du matériel et des machines. La partie administrative comprendra un bureau, des vestiaires et sanitaires, ainsi qu’une salle de vie. Un auvent offrira un zone de transition à l’abri des intempéries, permettant de travailler au sec et de stocker.
ADOSSÉ AU FRONT BÂTI EXISTANT
Implanté sur la partie haute de la parcelle, le bâtiment est implanté non loin des bâtiments de Burospace et de deux maisons d’habitation. Le bâtiment s’inscrit dans le site en tirant partie de la pente du terrain, ce qui en réduit la hauteur perçue depuis la route.
QUALITÉ FONCTIONNELLE ET ESTHÉTIQUE
Le projet prévoit un bâtiment en structure et bardage bois et une isolation biosourcée pour une approche “naturelle”, cohérente avec l’activité projetée. Les bottes de paille, dont la production est excédentaire en France, constituent un isolant 100% végétal et biodégradable en circuit court, notamment dans le Sud de l’Essonne et le Plateau de Saclay. Cette isolation permettra de maintenir une température optimale tout au long de l’année dans les locaux de stockage, sans qu’il soit nécessaire de les chauffer ou de les refroidir. Le bâtiment sera équipé de panneaux solaires, d’un système de récupération des eaux de pluies et des eaux usées. Il alimentera notamment le bassin de stockage pour limiter la quantité d’eau prélevée dans la nappe souterraine.









