–
–
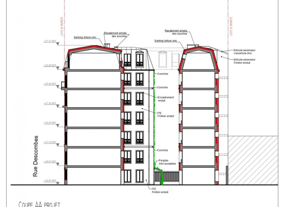
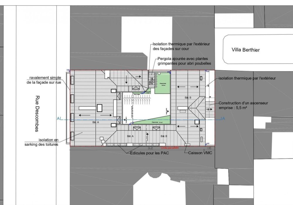
Située rue Descombes à Paris, et accueillant 28 logements, cette copropriété de 1850 est composée de deux bâtiments, qui s’articulent en fer à cheval autour d’une cour commune et d’une courette.
La rénovation thermique effectuée ici concerne l’intégralité des postes mobilisables dans l’immeuble : le ravalement simple de la façade sur rue avec restitution de la pierre de taille, l’isolation par l’extérieur des façades sur cour et courette, la réfection avec isolation de toutes les toitures, la création ou restitution d’un système de ventilation dans les logements, l’isolation du plancher haut des caves, et l’installation de ballons thermodynamiques et de pompes à chaleur.
Un ascenseur sera créé dans le bâtiment B afin d’en améliorer l’accessibilité. Il viendra prendre place dans la courette arrière, et la toiture de l’extension créée s’inscrira dans la continuité de la toiture existante.
Quant à la cour commune, actuellement revêtue de béton, des ambitions de végétalisation ont été exprimées. Une partie du béton sera démolie afin de verdir la cour et de redonner la possibilité à une partie des eaux de pluie de s’infiltrer dans la parcelle.
Les poubelles, auparavant disposées dans cette cour, prendront place sous une pergola en bois couverte, revêtue de plantes grimpantes afin de dissimuler les poubelles à la vue et au nez des copropriétaires.
Enfin, des racks à vélos seront installés afin de faciliter la pratique des mobilités douces.






