–
–
M° d’ouvrage : Foncière Logement / M° d’oeuvre : Rémi Doucet
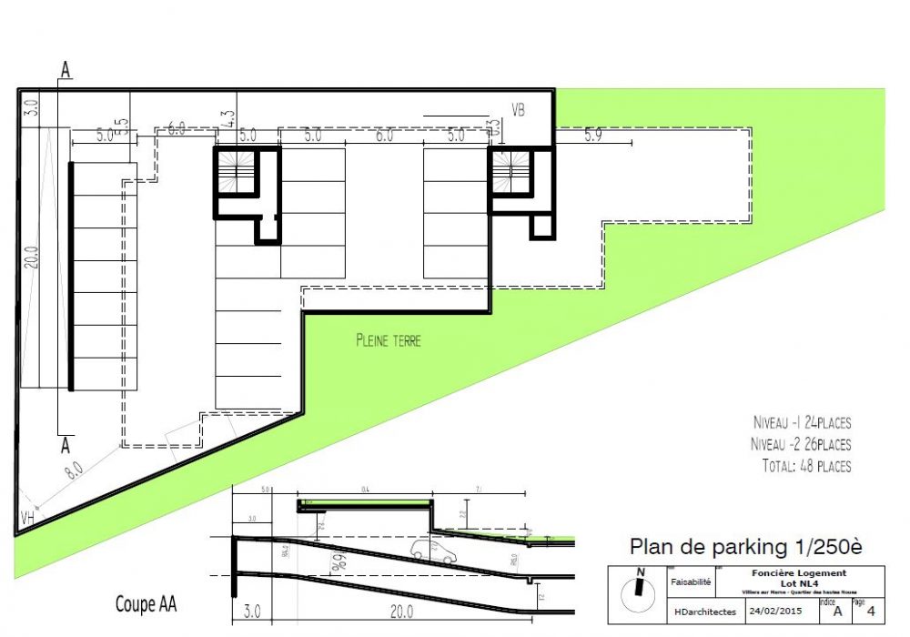
Ce travail de faisabilité a été réalisé pour l’AFL sur les terrains proposés par les collectivités dans le cadre des opérations ANRU de renouvellement urbain (Villiers-sur-Marne /94, Choisy-le-Roy /94, Lambersart /59). Ces faisabilités sont une phase préparatoire au lancement des consultations promoteurs-architecte ou constructeur-architecte. Elles consistent à prendre contact avec les collectivités pour recueillir les attentes de celles-ci en terme d’insertion urbaine, d’analyser le cadre réglementaire, d’évaluer la réceptivité des terrains, leur accessibilités, leur desserte réseau et de trouver un optimum de rentabilité des opérations, entre répartition typologique idéale et optimisation des parties communes et du stationnement.
A l’issue du travail de faisabilité, un cahier des charges doit être réalisé pour les consultations des constructeurs. Il peut s’écouler un an, parfois plus, entre les premières esquisses de faisabilité et le lancement des consultations. Cette période permet aux collectivités et à l’AFL de confirmer ou non le choix du terrain, les densités attendues, les éléments d’insertion urbain intangibles, les modalités financières et techniques de l’opération. Ces faisabilité sont donc un moment important de définition de l’opération. Celle-ci reprendra en phase de réalisation les réflexions issues de cette phase et en sont souvent assez proches en terme de volumétrie, de distribution, d’insertion urbaine.
Pendant cette phase de l’opération, un dialogue étroit entre l’architecte de faisabilité et la maîtrise d’ouvrage, mais détendu car non encore soumis aux contraintes de réalisation et aux impératifs économiques, peut alors s’établir.











